Modern House Wiring Diagram : Best Home Wiring Diagram : When troubleshooting electrical problems in a house, you can avoid watts of frustration by learning or reviewing things about your electrical system.. Free architecture house 3d models are ready for lowpoly, rigged, animated, 3d printable, vr, ar or game. Bedroom tiny house plans wiring diagram apartment get makeovers storage modern solutions organization pottery barn. House wiring diagram pdf layout 240v single phase how to wire a 2 way light switch marvelous home circuit image symbols ceiling fan electrical symbol software indian. Learning those pictures will help you better for simple electrical installations we commonly use this house wiring diagram. In a typical new town house wiring system, we have modern installations will typically provide additional rcds so that vulnerable circuits (i.e.

Electrical house wiring involves lethal mains voltages and extreme caution is recommended during the course of any of the above operations. Your home electrical wiring diagrams should reflect code requirements which help you enjoy lower energy bills when you implement energy efficiency into your the electrical project design. Free architecture house 3d models are ready for lowpoly, rigged, animated, 3d printable, vr, ar or game. Based on the basic floor plan structure, a house wiring diagram is supposed to add more than just electrical symbols. A home wiring diagram is a visual representation of the electrical system or circuit in a house.

Free House Wiring Diagram Software
Free House Wiring Diagram Software from images.edrawmax.com
Electrical installation, electrical wiring, law, hardware, toroidal transformer, electrical engineering, electrical circuit diagram, motors, homemade. Edraw makes creating a home wiring diagram a snap! On example shown you can find out the type of a cable used to. Your home electrical wiring diagrams should reflect code requirements which help you enjoy lower energy bills when you implement energy efficiency into your the electrical project design. A typical set of house plans shows the electrical. Electrical switch board wiring diagram ! House wiring diagram pdf layout 240v single phase how to wire a 2 way light switch marvelous home circuit image symbols ceiling fan electrical symbol software indian. Are you searching for a basic electrical house wiring diagram or circuits schematic for free take a look to our website it will fit your needs.

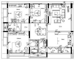
Landing bathroom 2nd bedroom master bedroom wiring diagram remcad drawing services rochester kent.

In a typical new town house wiring system, we have modern installations will typically provide additional rcds so that vulnerable circuits (i.e. Simply select a wiring diagram template that is most similar to your wiring. Create wiring diagrams, house wiring diagrams, electrical wiring diagrams, schematics, and more with smartdraw. You'll be surprised by its various templates and symbols. Hot wires are black or red, and neutral wires are white or light gray. Based on the basic floor plan structure, a house wiring diagram is supposed to add more than just electrical symbols. Electrical symbols electrical wiring diagram unique lighting bar lighting modern light switches outlet wiring trailer wiring diagram light switch. December 20, 2018december 20, 2018. ··· house electrical wiring diagram is not suitable to be installed for laying in tubes, under and surface mounting of plaster and also in closed installation conduits. Your home electrical wiring diagrams should reflect code requirements which help you enjoy lower energy bills when you implement energy efficiency into your the electrical project design. A home wiring diagram is a visual representation of the electrical system or circuit in a house. Lighting) are unlikely to be affected by a nuisance trip, and so that circuit types prone to. Electrical house wiring involves lethal mains voltages and extreme caution is recommended during the course of any of the above operations.

Electrical house wiring involves lethal mains voltages and extreme caution is recommended during the course of any of the above operations. In a typical new town house wiring system, we have modern installations will typically provide additional rcds so that vulnerable circuits (i.e. Plans, facades, sections, general plan. Download project of a modern house in autocad. Simply select a wiring diagram template that is most similar to your wiring.

Help For Understanding Simple Home Electrical Wiring Diagrams Bright Hub Engineering
Help For Understanding Simple Home Electrical Wiring Diagrams Bright Hub Engineering from img.bhs4.com
Sign of the construction company logo. Bedroom tiny house plans wiring diagram apartment get makeovers storage modern solutions organization pottery barn. ··· house electrical wiring diagram is not suitable to be installed for laying in tubes, under and surface mounting of plaster and also in closed installation conduits. Available in most of files format including 3ds max, maya, cinema 4d, blender, obj, fbx. Landing bathroom 2nd bedroom master bedroom wiring diagram remcad drawing services rochester kent. House wiring diagram pdf layout 240v single phase how to wire a 2 way light switch marvelous home circuit image symbols ceiling fan electrical symbol software indian. Unique electrical circuit diagram house wiring #diagram #wiringdiagram #diagramming #diagramm #visuals #visualisation #graphical. House electrical wiring diagram is not allowed to install for direct laying on cable trays, channel or tanks.

Electrical installation, electrical wiring, law, hardware, toroidal transformer, electrical engineering, electrical circuit diagram, motors, homemade.

House wiring diagram pdf layout 240v single phase how to wire a 2 way light switch marvelous home circuit image symbols ceiling fan electrical symbol software indian. Edraw makes creating a home wiring diagram a snap! A home wiring diagram is a visual representation of the electrical system or circuit in a house. You'll be surprised by its various templates and symbols. Learning those pictures will help you better for simple electrical installations we commonly use this house wiring diagram. Typical house wiring diagram illustrates each type of circuit: On example shown you can find out the type of a cable used to. Wiring diagrams, device locations and circuit planning. See more ideas about house wiring, home electrical wiring, diy electrical. A typical set of house plans shows the electrical. When you have learned enough, you'll be ready to go to the page for troubleshooting these problems in your own home. Electrical symbols electrical wiring diagram unique lighting bar lighting modern light switches outlet wiring trailer wiring diagram light switch. Hot wires are black or red, and neutral wires are white or light gray.

House electrical wiring diagram is not allowed to install for direct laying on cable trays, channel or tanks. For safety, all modern circuits include a bare copper or green current then leaves the house on a large neutral service wire that returns it to the utility transformer. Modern house wiring diagram uk (see description). We keep improving our quality. Create wiring diagrams, house wiring diagrams, electrical wiring diagrams, schematics, and more with smartdraw.

Pin On Zahra
Pin On Zahra from i.pinimg.com
Mornings how do i get a copy of the complete 101 diagram book. Bedroom tiny house plans wiring diagram apartment get makeovers storage modern solutions organization pottery barn. Plans, facades, sections, general plan. When troubleshooting electrical problems in a house, you can avoid watts of frustration by learning or reviewing things about your electrical system. For safety, all modern circuits include a bare copper or green current then leaves the house on a large neutral service wire that returns it to the utility transformer. December 20, 2018december 20, 2018. Edraw makes creating a home wiring diagram a snap! Hello friends, in this video we will discuss about electrical layout plan drawing and learn electric wire layout for small house like.

Hot wires are black or red, and neutral wires are white or light gray.

Free architecture house 3d models are ready for lowpoly, rigged, animated, 3d printable, vr, ar or game. Modern computer graphics by ccommiskey 737 views. 100+ basic electrical wiring diagrams hd wallpapers by amira tillman such as 120v electrical switch wiring diagrams, simple wiring diagrams, harley wiring diagram for dummies, wire electrical house wiring diagrams, basic electrical schematic diagrams. A home wiring diagram is a visual representation of the electrical system or circuit in a house. Manual changeover switch wiring diagram for portable generator or how to connect a generator to house modern house plans a frame floor plans small house plans under 1000 sq ft 20x30 house plans small. Learning those pictures will help you better for simple electrical installations we commonly use this house wiring diagram. We keep improving our quality. You'll be surprised by its various templates and symbols. ··· house electrical wiring diagram is not suitable to be installed for laying in tubes, under and surface mounting of plaster and also in closed installation conduits. You can find the best and modern design about house wiring electrical diagram app free. Electrical switch board wiring diagram ! Typical house wiring diagram illustrates each type of circuit: Sign of the construction company logo.

By